as estações de metrô mais profundas do mundo

4

Imagina caminhar por 8 minutos dentro de uma estação de metrô até ter a possibilidade de entrar em um trem. É o que acontece na estação de metrô Hongyancun, localizada na cidade de Chongqing, na China. A estrutura tem profundidade de 116 metros abaixo da superfície, sendo a maior de todo o mundo.

Chongqing é uma das maiores e mais singulares metrópoles da China, localizada no sudoeste do país, com uma população urbana superior a 23 milhões de habitantes. A cidade se destacar por sua arquitetura futurista, construída em camadas nas montanhas. Assim, a estação de metrô Hongyancun se destaca.

A estação de metrô Hongyancun foi inaugurada em 2022 e faz parte da Linha 9 do sistema metroviário local. Com116 metros abaixo da superfície, ela se tornou a mais profunda do mundo ao superar o recorde da estação Arsenalna, na Ucrânia.

8 minutos de caminhada

A profundidade chama a atenção e impõe paciência aos passageiros, que podem precisar até mesmo de 8 minutos para pegar o trem a depender do trajeito escolhido. A estação de metrô conta com esteiras e escadas rolantes, além deelevadores.

A grandiosa estação foi projetada com foco na segurança e eficiência, contando com sistemas avançados de ventilação, estrutura resistente a abalos sísmicos e múltiplas entradas para facilitar o fluxo de passageiros.

Mas a construção da estação de metrô Hongyancun não teve como objetivo criar um recorde de profundidade, e sim de uma necessidade. A cidade de Chongqing tem relevado acidentado, com montanhas e rios que dificultam a expansão urbana tradicional. Assim, a solução foi avançar ao máximo até o subsolo.

Tudo sobre Mundo em primeira mão!

Estação de metrô Hongyancun, localizada na cidade de Chongqing, na China | Foto: Reprodução/ CNS

E no Brasil?

Entre as estações em funcionamento no Brasil, a estação Santa Albina, da Linha 4 do metrô do Rio de Janeiro, é a mais profunda, com profundidade de 52 metros.

Mas esse cenário irá mudar em breve, com cinco estações que tiveram obras iniciadas e serão concluídas entre 2026 e 2029.

São Paulo vai liderar o índice com quatro estações acima dos 60 metros de profundidade. A lista tem:

  1. Estação Itaberaba/Hosp. Vila Penteado – 65,71 metros de profundidade
  2. Higenópolis/Mackenzie – 64,86 metros de profundidade
  3. Bela Vista – 60,86 metros de profundidade
  4. PUC/Cardoso de Almeida – 60,51 metros de profundidade
Estação Itaberaba em São Paulo será a mais profunda do Brasil. Obras estão na reta final

Estação Itaberaba em São Paulo será a mais profunda do Brasil. Obras estão na reta final | Foto: Reprodução

Bahia se destaca

A quinta estação mais profunda do Brasil teve suas obras iniciadas em Salvador. Será a estação Campo Grande, que ligará à região do Centro da capital baiana. A profundidade será de 55 metros.

O tramo IV do metrô terá 1,1 km de extensão, inteiramente no subsolo do Centro Antigo de Salvador. O traçado começa na Estação da Lapa, passando por baixo da Avenida Joana Angélica e do Politeama, em direção ao Campo Grande.

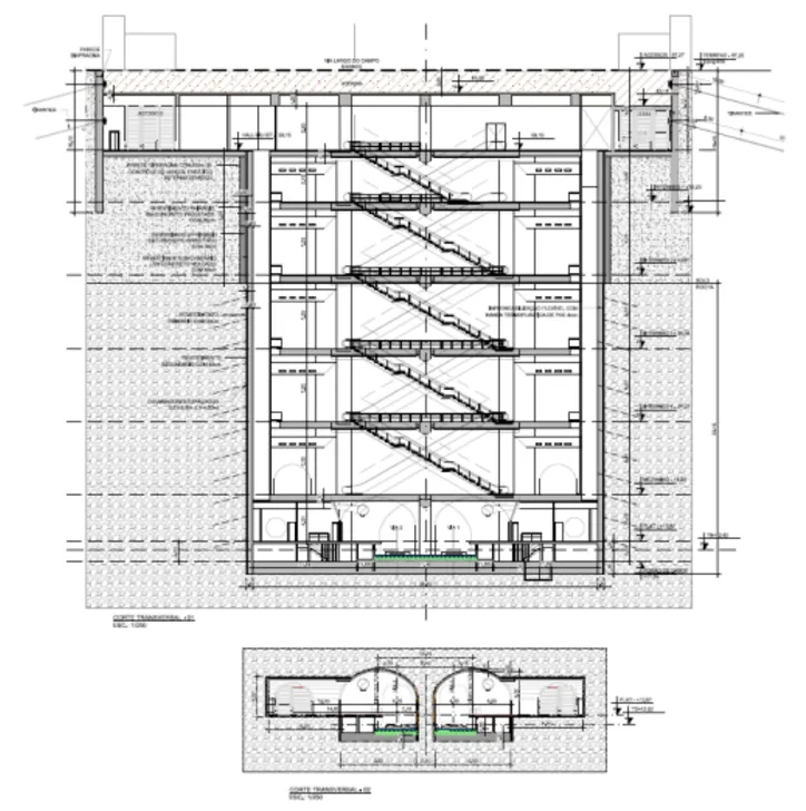
Projeto da Estação Campo Grande

Projeto da Estação Campo Grande | Foto: Reprodução

O novo empreendimento tem um custo estimado de R$ 1,518 bilhão, com verbas liberadas pelo novo PAC (Programa de Aceleração do Crescimento).

Também em Salvador, a Estação Campo da Pólvora possui 35 metros de profundidade, o equivalente a um prédio de 12 andares, sendo atualmente a mais profunda em funcionamento em todo o Nordeste.

Qual é a profundidade da estação de metrô Hongyancun?

A estação de metrô Hongyancun, localizada em Chongqing, China, tem uma profundidade de 116 metros, tornando-se a mais profunda do mundo.

Quantos minutos leva para chegar ao trem na estação Hongyancun?

Os passageiros podem levar até 8 minutos para caminhar até o trem, dependendo do trajeto escolhido, utilizando esteiras e escadas rolantes.

Quais são algumas características da estação Hongyancun?

A estação foi projetada com foco na segurança e eficiência, incluindo sistemas avançados de ventilação e resistência a abalos sísmicos.

Qual é a estação de metrô mais profunda do Brasil?

A estação mais profunda em funcionamento no Brasil atualmente é a Santa Albina, no Rio de Janeiro, com 52 metros de profundidade.

Quando serão concluídas as novas estações profundas em São Paulo?

As novas estações de metrô em São Paulo, que terão mais de 60 metros de profundidade, estão previstas para serem concluídas entre 2026 e 2029.



Fonte: A Tarde

Artigos relacionados

Últimas notícias

Mulher fica gravemente ferida após filho atear fogo em moto durante abordagem

Uma mulher ficou gravemente ferida após tentar impedir o próprio filho de...

Últimas notícias

VÍDEO: Festa com mulheres nuas em janela gera tumulto em cidade turística famosa

Um episódio de perturbação chamou a atenção de moradores no bairro Pioneiros,...

Últimas notícias

Dança afro pode se tornar Patrimônio Cultural Imaterial de Salvador

A dança afro pode se tornar Patrimônio Cultural Imaterial de Salvador. Um...

Últimas notícias

Homem é preso suspeito de engravidar adolescente de 12 anos no interior da Bahia

Um homem de 38 anos foi preso na terça-feira (28), na zona...